OPTIE - VILLA MET 4 SLAAPKAMERS TE KOOP IN LOCHRISTI (WACHTEBEKE)
OPTIE - Open bebouwing met 4 slaapkamers, dubbele garage en ruime zuidtuin te koop in Wachtebeke!
In de Gladiolenlaan 1A vindt u deze moderne, energiezuinige woning met 332 m² bewoonbare oppervlakte op 1.274 m² grond en EPC A. Voorzien van warmtepomp, 16 zonnepanelen en airco’s voor maximaal comfort én lage verbruikskosten.
Troeven:
- EPC A – warmtepomp, 16 zonnepanelen, airco
- 2 thuisbaterijen
- 332 m² woonopp. – perceel 1.274 m²
- 4 slaapkamers, waarvan 1 gelijkvloers
- Master met dressing en balkon
- Zuidgerichte, volledig omheinde tuin met ruim terras
- Dubbele inpandige garage + royale oprit
Indeling:
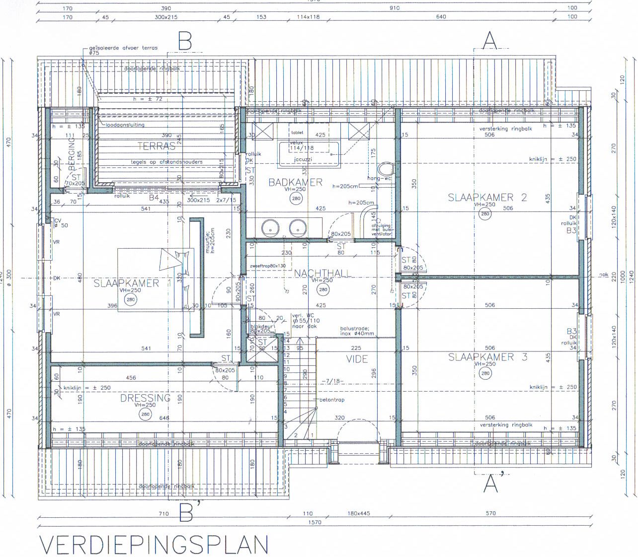
Representatieve inkomhal met hoog plafond en gastentoilet. Gelijkvloerse slaapkamer met optie voor een ensuite badkamer. Lichtrijke leefruimte met gashaard en grote raampartijen, in open verbinding met de keuken en zicht op de tuin. Vanuit de leefruimte toegang tot de dubbele garage. Op de verdieping: 3 slaapkamers, waaronder de master met dressing en balkon, en een volledig uitgeruste badkamer met douche, ligbad met jacuzzi-functie, lavabo en toilet. De ruime zolder biedt bijkomende mogelijkheden voor extra (hobby)ruimtes of bergruimte. Buiten geniet u van een zuidgerichte, fraai aangelegde tuin met veel privacy en een groot terras. De brede oprit voorziet in extra parkeergelegenheid.
Interesse? Bel 0492 97 47 00 of mail nathalie@immomamo.be.
Details
1274 m²
4
2
Bouwtype
Open
Algemene staat
Instapklaar
Bouw (Jaar)
2007
Oriëntatie tuin
Zuid
Prijs
€675.000
Type
Huis
Renovatieverplichting
Nee
Kenmerken
Huisdieren toegelaten
ja
Elektriciteit
ja
Stadswater
ja
Regenwater
ja
Telefoon
ja
Bronwater
ja
Alarm
ja
Riolering
ja
Airco
ja
Internet
ja
Zonnepanelen
ja
Warmtepomp
ja
Indeling
Bewoonbaar
332 m²
Terreinoppervlakte
1274 m²
Energie
EPC label
EPC Certificaat
ja
EPC-waarde
83 kWh/m²/jaar
K-peil / S-peil
51
Bouwtechnisch
Beglazing
Dubbele
Verwarming
Warmtepomp
Keuken
Geïnstalleerd
Stedenbouw
Verkavelingsvergunning
nee
Bouwvergunning
ja
Keuringsattest elektriciteit
ja, conform
Beschermd erfgoed
nee
Overstromingsgevoeligheid
Niet overstromingsgevoelig
Recht van voorkoop
nee
Stedenbouwkundige bestemming
Woonuitbreidingsgebied
Certificaat asbest
Geen
Gebouwscores
A
Perceelscore
A
Interesse in dit pand?
ImmoMaMo staat voor een doorgedreven service, persoonlijke betrokkenheid en steeds het geven van het beste advies op maat van de klant. Contacteer ons via e-mail of via telefoon.
Contacteer ons
Niet gevonden wat je zoekt?
Maar… je wil op de hoogte blijven van de activiteiten rond dit eigendom en andere interessante aanbiedingen?
Schrijf je in


